編輯:上海雙高閥門集團有限公司
日期:2020-08-18 訪問:1528
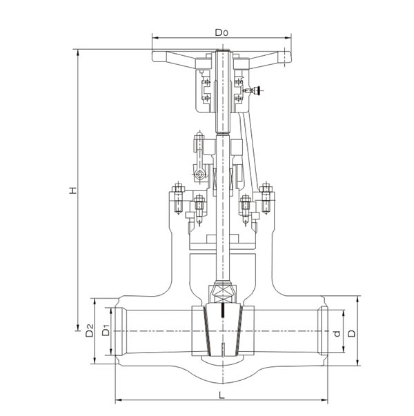
高溫高壓焊接式手動閘閥說明

一、說明:
1、本焊接閘閥中部連接方式有法蘭連接
與自密封式兩種。
2、閥體長度及焊接口尺寸倒角坡度可根
據用戶要求生產。
二、性能規范及尺寸:

地 址:上海市松江葉榭工業區葉旺路雙高工業區
電 話:021-57802222 67801100 67801122 67801266
傳 真:021-67801267 67801268
http://www.shuanggao.com
E-mail:sales@shuanggao.com
上海雙高閥門(集團)有限公司 |
|||||||||||||||||||||
|
|||||||||||||||||||||